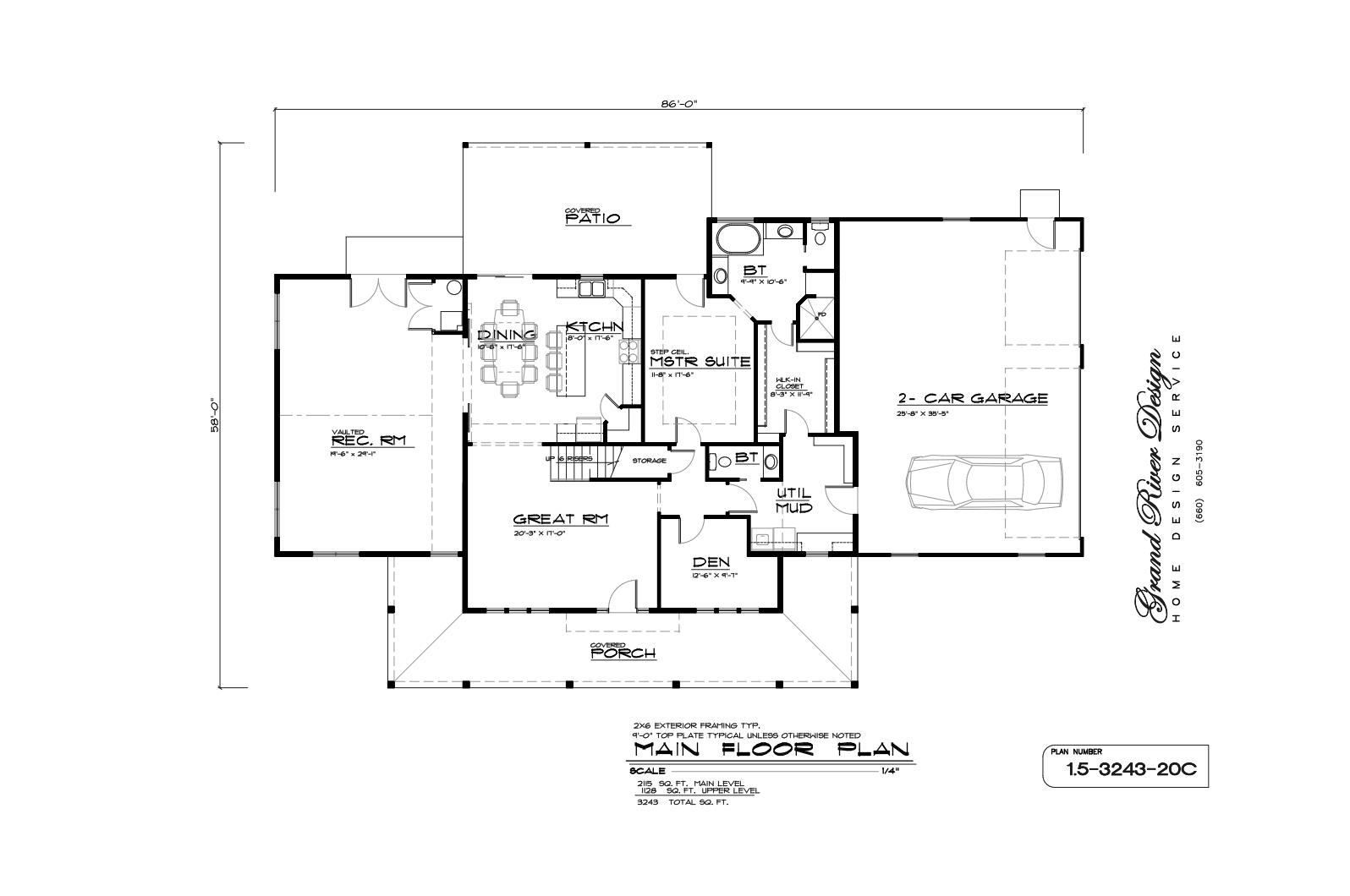
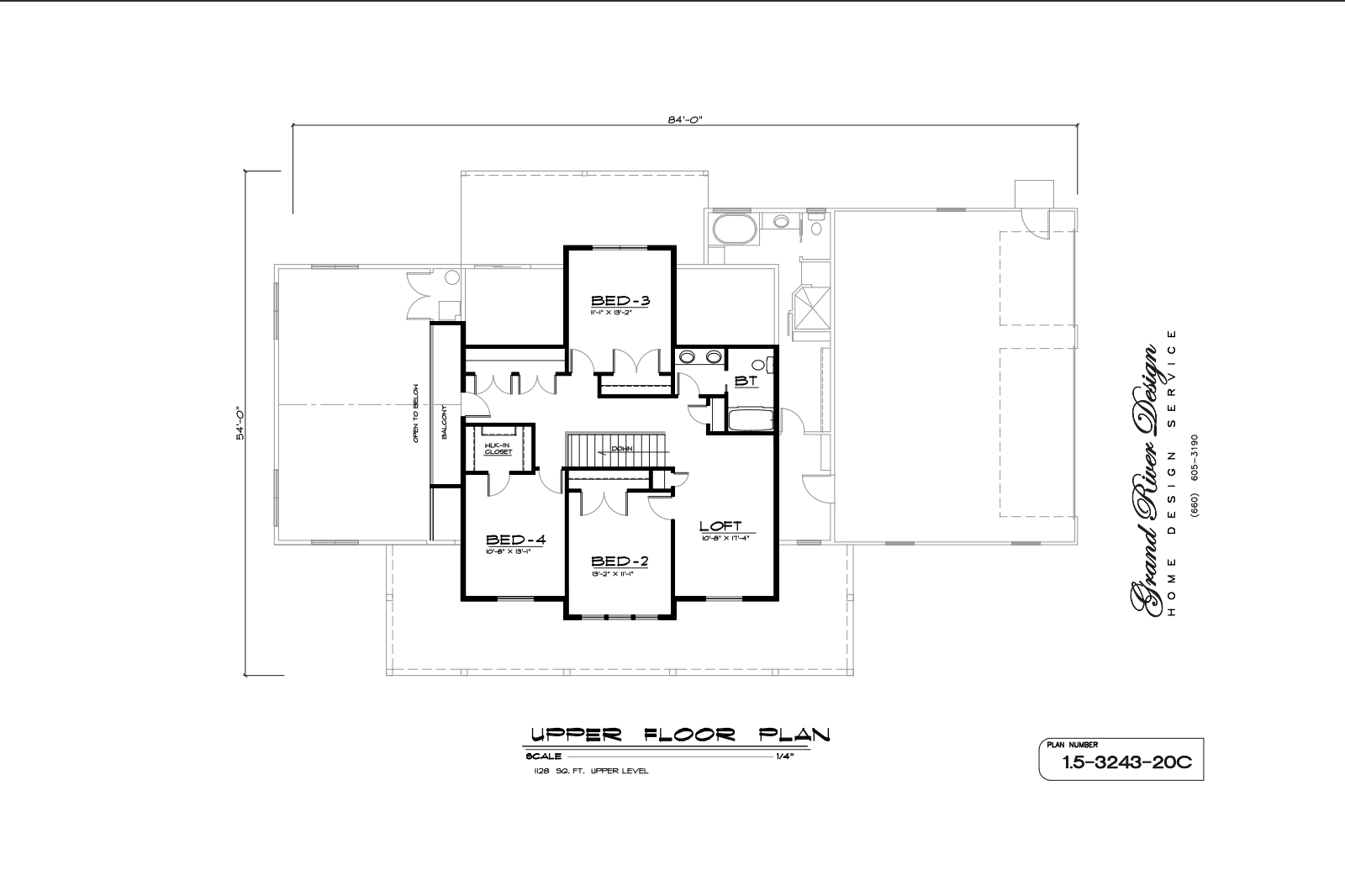
This spacious 3243 sq. ft., 4-bedroom, 3-bathroom home offers a perfect blend of comfort and functionality across 1.5 stories. The main level features a luxurious master suite, an open-concept great room and kitchen, a den, and a rec room, ideal for family living and entertaining. With an additional loft and three bedrooms upstairs, this versatile design provides ample space for a large family and is perfect for modern lifestyles.







