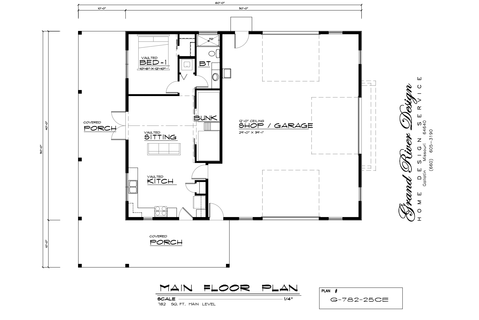
This versatile “Shouse” or barndominium-style plan features a 782-square-foot living area seamlessly attached to a massive 29′ x 39′ shop and garage space. The interior offers an efficient open-concept layout with vaulted ceilings in the sitting and kitchen areas, a private master bedroom, and a dedicated bunk nook for extra guests. Designed for functionality and style, the exterior includes a wrap-around covered porch and a classic cupola, making it an ideal choice for a hobbyist retreat or a compact rural home.




