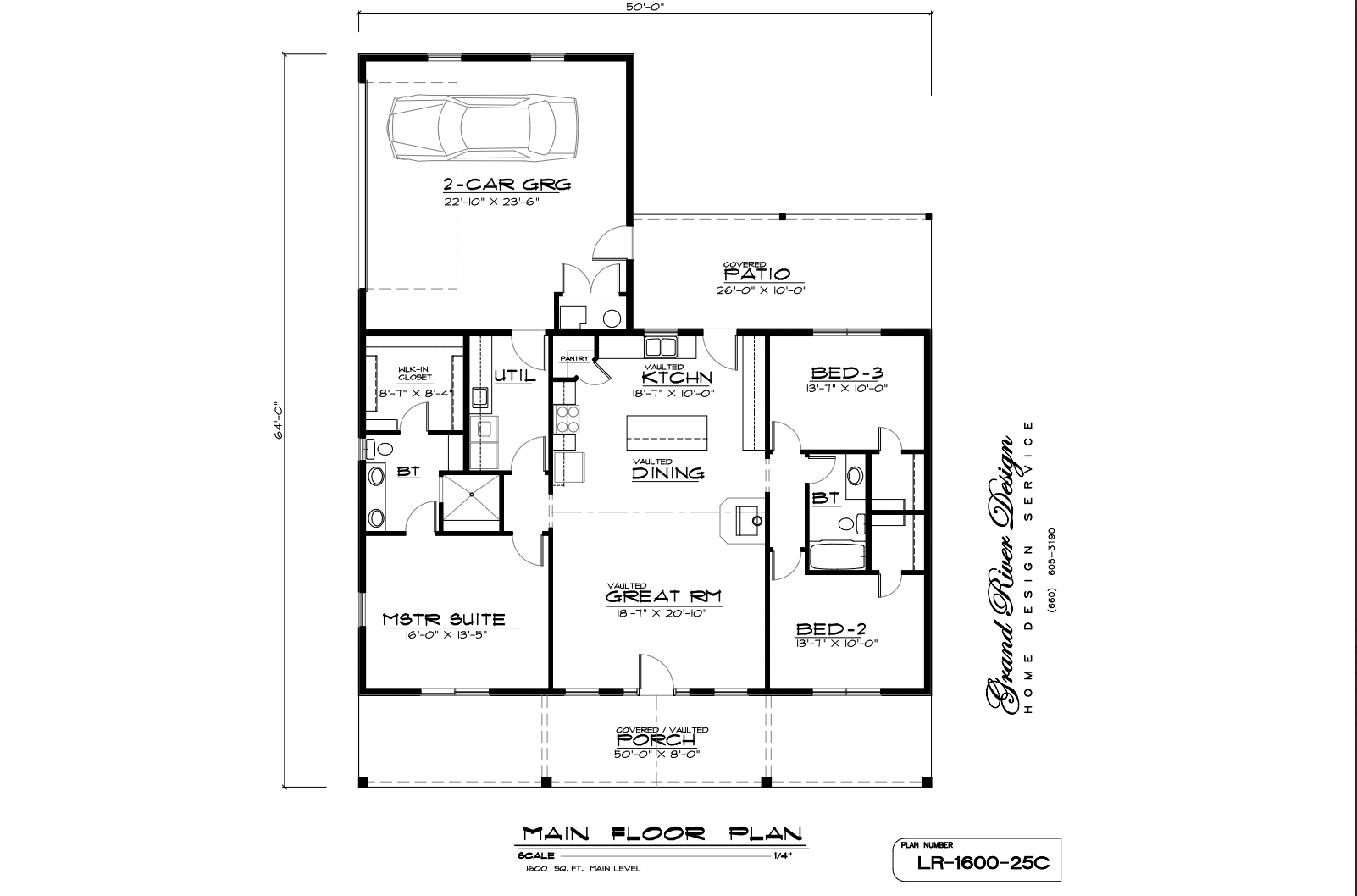
The LR-1600-25C, a spacious 1,600 sq. ft. Ranch home plan featuring 3 bedrooms and 2 full bathrooms. The appealing exterior includes a large covered front porch, leading into an open-concept design that integrates the vaulted Great Room, Kitchen, and Dining area. This highly functional design is completed by a private master suite and a convenient 2-car garage, making it a fantastic choice for comfortable single-level living.
LR-1600-25C
$500.00






