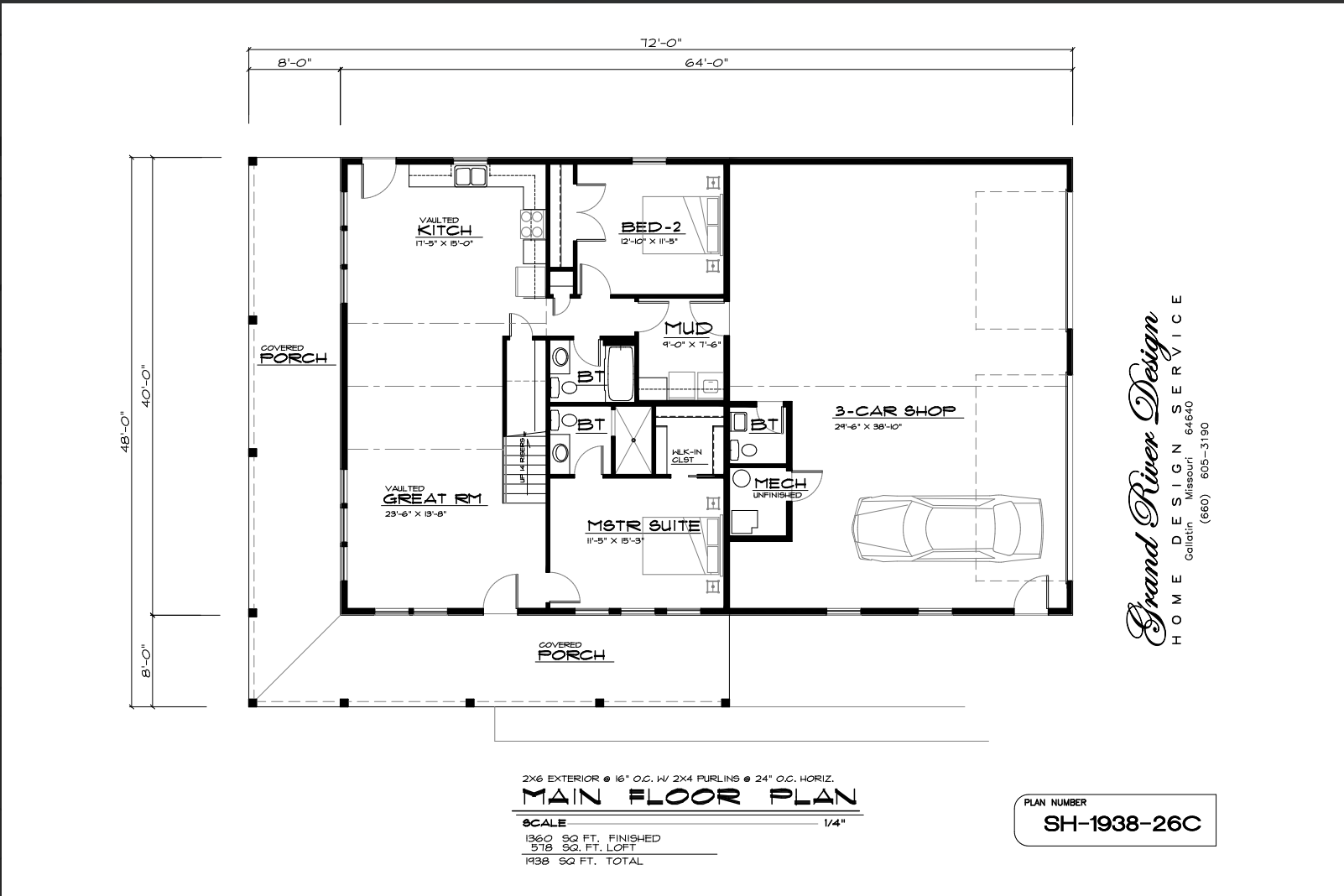
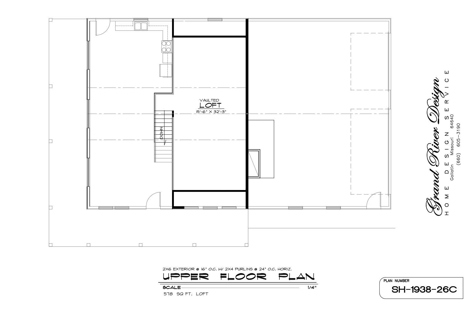
This versatile Shouse (Shop House) plan features a spacious 1,938 sq. ft. layout that perfectly blends a comfortable 2-bedroom home with a massive integrated 3-car shop. The open-concept interior boasts a vaulted great room and kitchen, plus a private master suite and a functional loft for extra living space. Designed with a wrap-around covered porch, this plan is the ideal solution for those seeking a stylish, modern barndominium with ample room for hobbies and storage.






