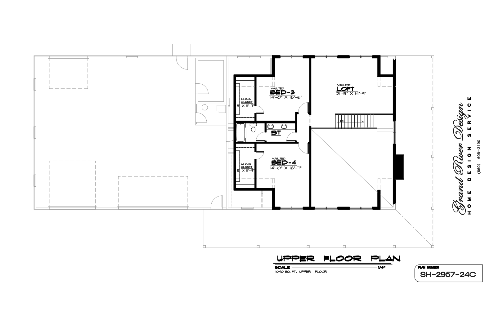
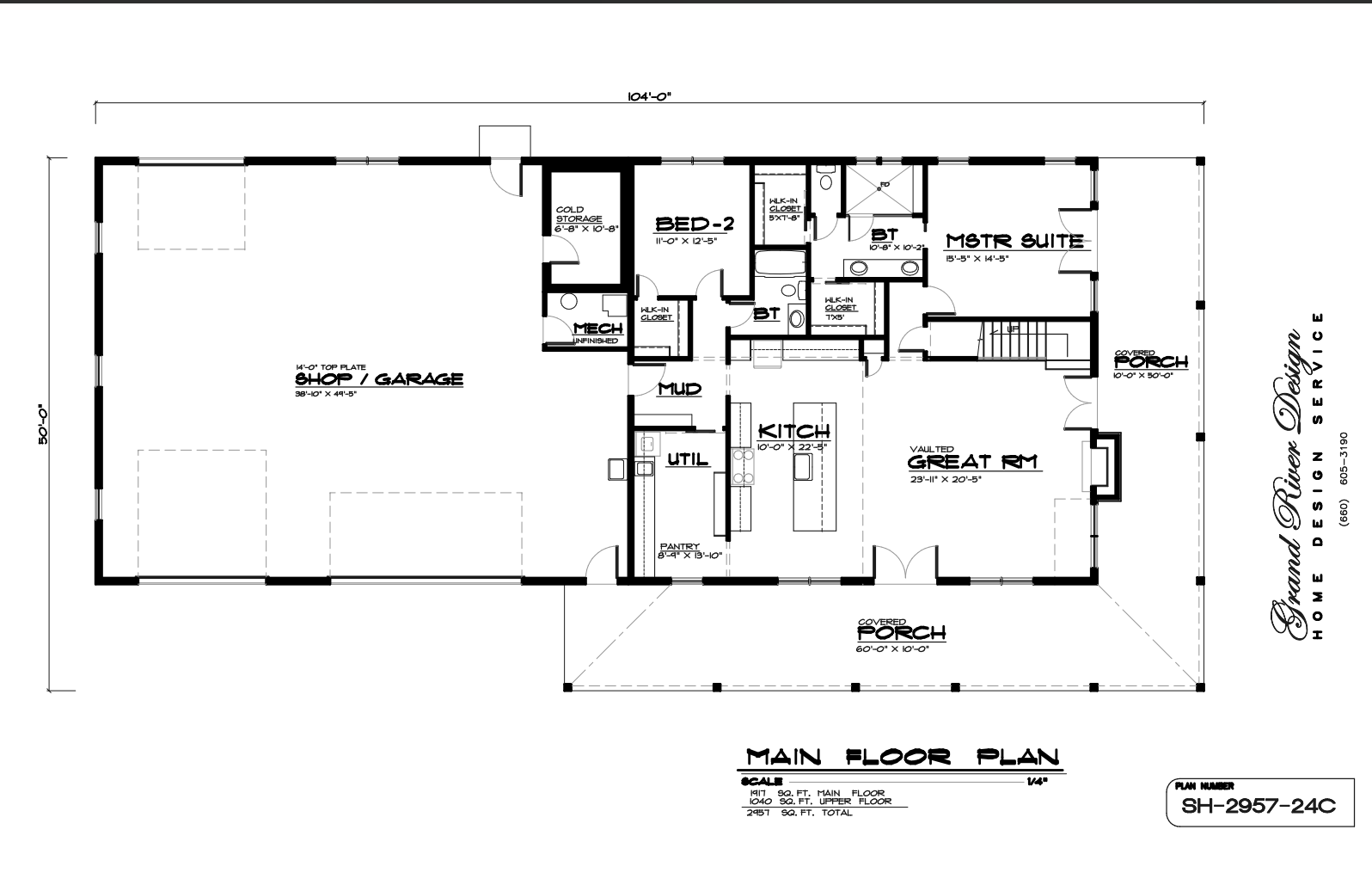
This spacious 2,957 square foot “Shouse” combines high-end residential living with a massive integrated shop and garage perfect for any hobbyist. The open-concept interior features a vaulted great room and a luxurious master suite on the main level, with additional bedrooms and a loft located on the second floor. Designed for functionality and style, this barndominium-style home includes a large wraparound porch and a modern kitchen, making it the ideal choice for those seeking a versatile and expansive floor plan.
SH-2957-24C
$1,000.00
Related products
-
SH-1864-23C
$500.00 -
SH-2846-16
$1,000.00 -
SH-1152-16c
$500.00 -
SH-980-22-C
$500.00







